服务热线:17710366863

直线电机机械导轨

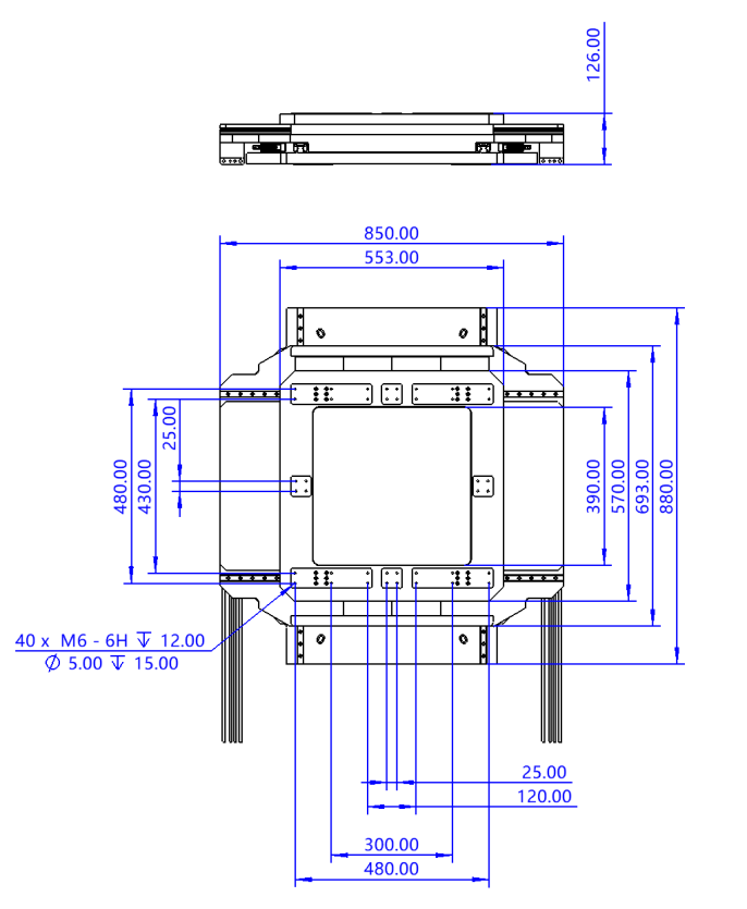
大中空双驱直线电机平台

发布日期:2025-05-13

8

   LMTE390-XY-330X330

大中空直线电机位移台

1749378781988

1750589568231

 

分享到: